Construction documents are prepared for the following countries:

House Plan: 2080 ft², 2 Stories, 4 Beds, 3 Baths, Open Floor Plan

Plan
21643R
Complete
Signed & Sealed
DC Available
Key Specs
193
Total Heated m²
3 + 0
Baths + 1/2 Baths
4 + 0
Beds + Home Office
0
Cars
Need to make some changes?

This house plan can be modified to fit your family’s lifestyle and your lot’s specifics.

The architect of this plan is not from your country.

If you would like to modify this house plan, you have two options:

1. Modifications by the Original Architect: Work directly with the original architect to purchase a modified digital concept, then forward it to your local architect to order the construction documents.

2. Modifications by Your Local Architect: Purchase the digital concept as-is, work with your local architect to make changes, and then proceed with ordering the construction documents.

Floor Plans
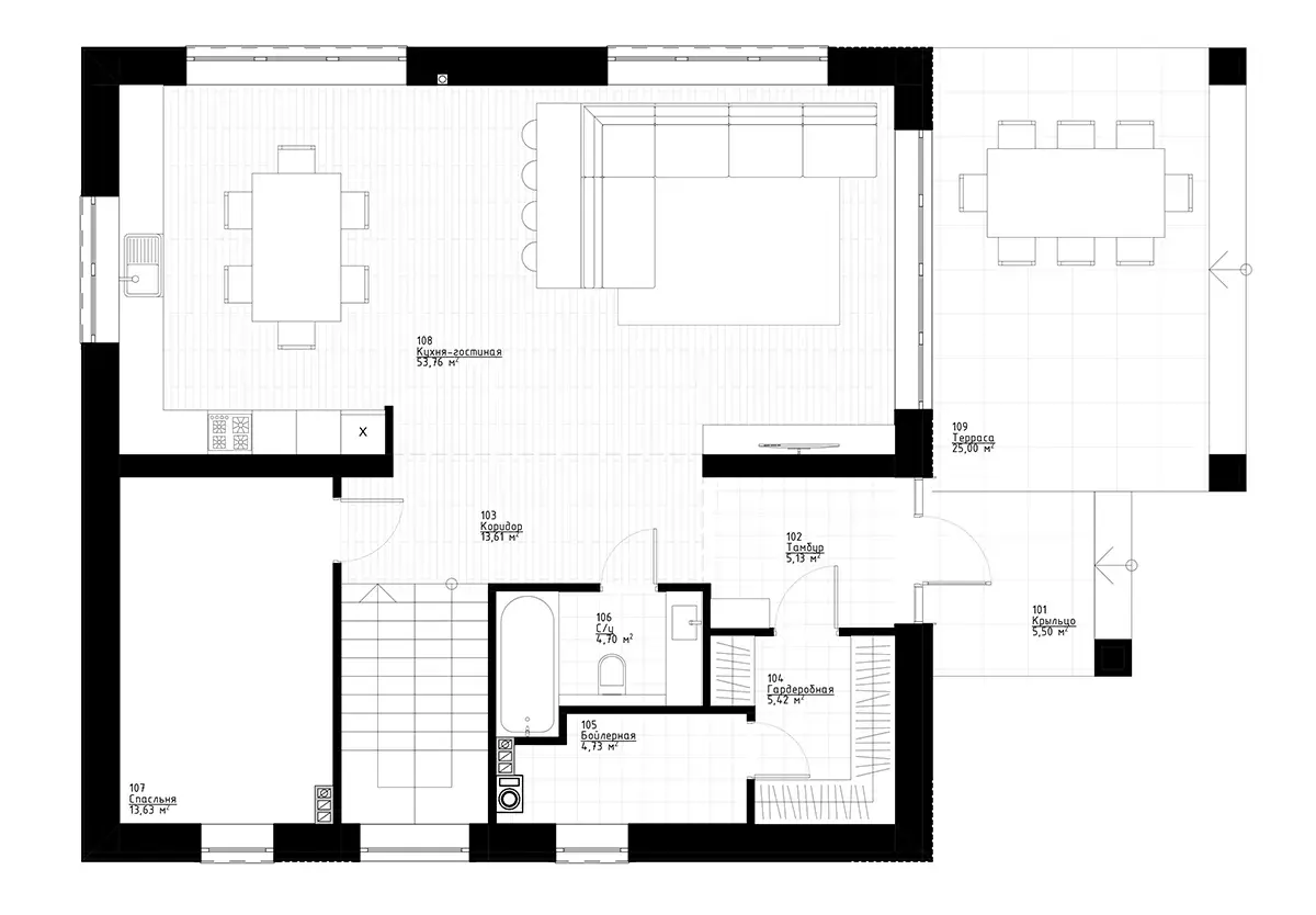
First Floor
21643R - First Floor
Second Floor
21643R - Second Floor
Full Specs & Features
Area
First Floor: 101 m²
Second Floor: 92 m²
Third Floor: 0 m²
Basement: 0 m²
Bonus: 0 m²
Total Structure: 0 m²
Total Heated: 193 m²
Dimensions
Depth 15.75 m
Width 11.00 m
Exterior Wall Framing
Ceramic Block
Aerated Concrete Block
Brick
Calcium silicate block
Exterior Wall Materials
Wood
Tiles
Rooms
Full bathrooms : 3
Half bathrooms : 0
Bedrooms : 4
Utility room
Entry
Walk In Closet
Foundation
Slab
Concrete Stem Wall
Architectural Style
Contemporary
High-tech
Modern
Exterior Features
Balcony
Stacked Porches
Covered Front Porch
Large Windows
Floor-to-Ceiling Windows
Interior Features
Second Floor Master
Clustered Bedrooms
Open Floor Plan
Large Family Room (>270 ft²)
Large Kitchen (>130 ft²)
Kitchen and Dining
Breakfast Nook
Garage
9: 0 m²
Cars: 0
Roof
Roof Area: 0.00m²
Hip & Valley
Architect
Stanislav Garder Stanislav Garder Residential Architect
Kazakhstan
Kazakhstan
Almaty, Almaty
Plan Package

The house plan might not adhere to the building codes of your country.

To ensure the house plan complies with your country’s building codes, you need to purchase the digital concept from the original architect and choose a local architect below to prepare the construction documents.

Digital Concept Delete key
$300
Subtotal