Construction documents are prepared for the following countries:

House Plan: 1188 ft², 1 Story, 4 Beds, 2 Baths, Open Floor Plan, 1-Car Garage

Plan
10622R
Complete
Signed & Sealed
DC None
Key Specs
110
Total Heated m²
2 + 0
Baths + 1/2 Baths
4 + 0
Beds + Home Office
1
Cars
Projekt architektoniczno-budowlany zawiera

opis techniczny

rzuty wszystkich kondygnacji

rzut więźby dachowej

rzut dachu

przekroje

elewacje

Projekt techniczny zawiera

projekt konstrukcji

projekt instalacji sanitarnych

projekt instalacji elektrycznej

projekt instalacji wentylacji mechanicznej

Do projektu dodajemy bezpłatnie

teczka do przechowywania dokumentacji projektowej

dziennik budowy

tablicę informacyjną na budowę - po otrzymaniu projektu domu i wypełnieniu ankiety

zgodę na wprowadzenie zmian do projektu

dokumentację projektową w plikach pdf

Need to make some changes?

This house plan can be modified to fit your family’s lifestyle and your lot’s specifics.

The architect of this plan is not from your country.

If you would like to modify this house plan, you have two options:

1. Modifications by the Original Architect: Work directly with the original architect to purchase a modified digital concept, then forward it to your local architect to order the construction documents.

2. Modifications by Your Local Architect: Purchase the digital concept as-is, work with your local architect to make changes, and then proceed with ordering the construction documents.

Video
Floor Plans
First Floor
10622R - First Floor
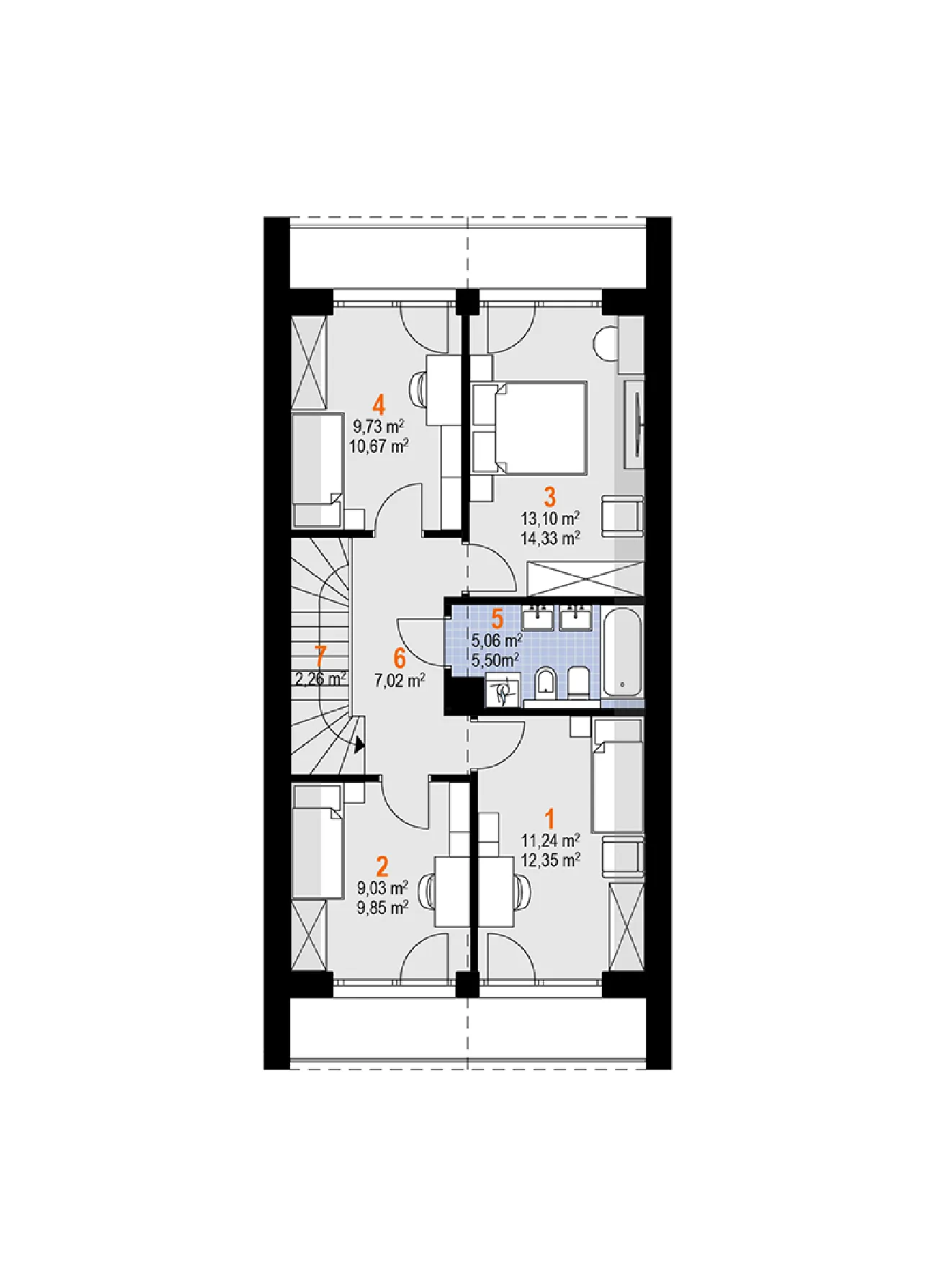
Second Floor
10622R - Second Floor
Full Specs & Features
Area
Total Unheated: 18 m²
Basement: 0 m²
Bonus: 0 m²
Total Heated: 110 m²
Dimensions
Depth 14.60 m
Width 7.00 m
Height 8.71 m
Exterior Wall Framing
Wood-framed
Ceramic Block
Aerated Concrete Block
Exterior Wall Materials
Metal Panels
Rooms
Full bathrooms : 2
Half bathrooms : 0
Bedrooms : 4
Entry
Storage
Foundation
Slab
Concrete Stem Wall
Architectural Style
Barn
Contemporary
European
Modern
Exterior Features
Balcony
Deck
Panoramic Windows
Large Windows
Floor-to-Ceiling Windows
Interior Features
Second Floor Master
Split Bedrooms
Open Floor Plan
Kitchen and Dining
Breakfast Nook
Island
Garage
9: 18 m²
Cars: 1
Garage with Upstairs
Front Entry
Roof
Roof Area: 1528.48m²
Gable
Ridge perpendicular to street
Roof Pitch : 12/12 (45°)
Architect
Archeton Archeton Architecture Firm country with code pl Poland
country with code pl Poland
Lesser Poland Voivodeship, Kraków, ul. Cystersów 9
Plan Package

The house plan might not adhere to the building codes of your country.

The architect does not sell digital concept or construction documents for your country. You can check the “Building codes match” box and view the Plan Package for the architect’s home country.

How much will it cost to build?
Cost-to-Build Report
$ 70
This report will provide you with cost estimates based on location and building materials.