Construction documents are prepared for the following countries:

House Plan: 1361 ft², 1 Story, 3 Beds, 1 Baths, 1-Car Garage

Plan
48610R
Complete
Signed & Sealed
DC Available
Key Specs
126
Total Heated m²
1 + 0
Baths + 1/2 Baths
3 + 0
Beds + Home Office
1
Cars
111

222

Need to make some changes?

This house plan can be modified to fit your family’s lifestyle and your lot’s specifics.

The architect of this plan is not from your country.

If you would like to modify this house plan, you have two options:

1. Modifications by the Original Architect: Work directly with the original architect to purchase a modified digital concept, then forward it to your local architect to order the construction documents.

2. Modifications by Your Local Architect: Purchase the digital concept as-is, work with your local architect to make changes, and then proceed with ordering the construction documents.

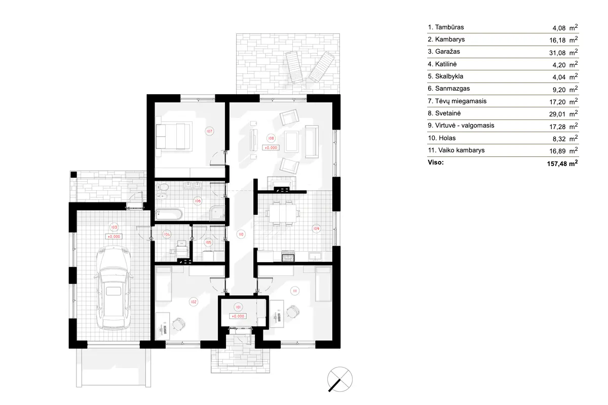
Floor Plans
First Floor
48610R - First Floor
Full Specs & Features
Area
First Floor: 126 m²
Second Floor: 0 m²
Third Floor: 0 m²
Basement: 0 m²
Total Heated: 126 m²
Dimensions
Depth 14.25 m
Width 15.30 m
Height 5.10 m
Exterior Wall Framing
Ceramic Block
Aerated Concrete Block
Calcium silicate block
Exterior Wall Materials
Stone/Brick Veneer
Stucco
Rooms
Full bathrooms : 1
Half bathrooms : 0
Bedrooms : 3
Utility room
Laundry
Entry
Foundation
Piling
Slab
Block Stem Wall
Concrete Stem Wall
Architectural Style
Bungalow
European
Traditional
Exterior Features
Deck
Interior Features
Laundry On Main Floor
Fireplace in Family Room
Split Bedrooms
Closed Floor Plan
Large Family Room (>270 ft²)
Large Kitchen (>130 ft²)
Kitchen and Dining
Breakfast Nook
Garage
9: 31 m²
Cars: 1
Front Entry
Roof
Roof Area: 0.00m²
Double Shed
Ridge perpendicular to street
Roof Pitch : 2/12 (9.5°)
Architect
NPS projektai NPS projektai Architecture Firm country with code lt Lithuania
country with code lt Lithuania
Šiauliai City Municipality, Šiauliai, Tilžės g. 151 (II aukštas)
Plan Package

The house plan might not adhere to the building codes of your country.

To ensure the house plan complies with your country’s building codes, you need to purchase the digital concept from the original architect and choose a local architect below to prepare the construction documents.

Digital Concept plan_plan_cad_owner_country_desc
$1260
Subtotal
Local Architects
Offers from your local architects who are ready to develop construction documents based on the digital concept.
 

 

 

Oops!
No one found.