Construction documents are prepared for the following countries:

House Plan: 1046 ft², 2 Stories, 2 Beds, 2 Baths, 2-Car Garage

Plan
82072R
Complete
Signed & Sealed
DC Available
Key Specs
97
Total Heated m²
2 + 0
Baths + 1/2 Baths
2 + 0
Beds + Home Office
2
Cars
111

222

Need to make some changes?

This house plan can be modified to fit your family’s lifestyle and your lot’s specifics.

The architect of this plan is not from your country.

If you would like to modify this house plan, you have two options:

1. Modifications by the Original Architect: Work directly with the original architect to purchase a modified digital concept, then forward it to your local architect to order the construction documents.

2. Modifications by Your Local Architect: Purchase the digital concept as-is, work with your local architect to make changes, and then proceed with ordering the construction documents.

Floor Plans
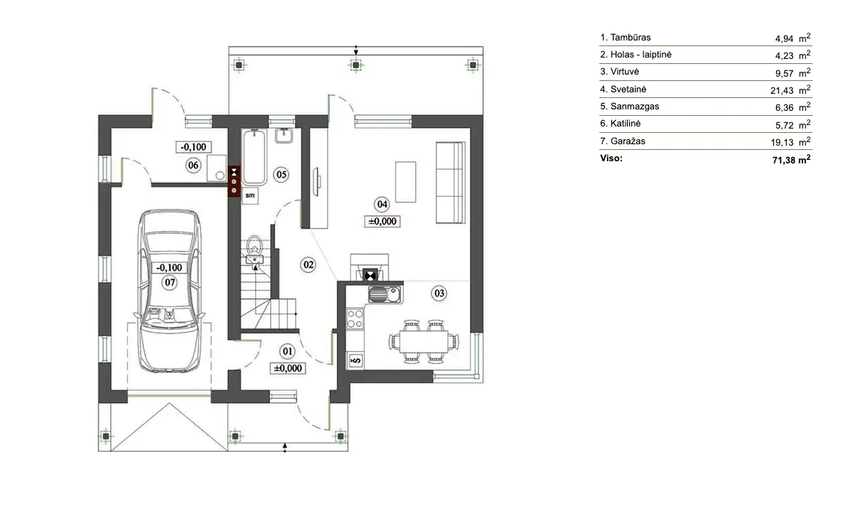
First Floor
82072R - First Floor
Second Floor
82072R - Second Floor
Full Specs & Features
Area
First Floor: 52 m²
Second Floor: 45 m²
Third Floor: 0 m²
Basement: 0 m²
Total Heated: 97 m²
Dimensions
Depth 11.85 m
Width 11.50 m
Height 6.50 m
Exterior Wall Framing
Ceramic Block
Aerated Concrete Block
Calcium silicate block
Exterior Wall Materials
Wood
Stucco
Rooms
Full bathrooms : 2
Half bathrooms : 0
Bedrooms : 2
Utility room
Entry
Walk In Closet
Foundation
Piling
Slab
Block Stem Wall
Concrete Stem Wall
Architectural Style
European
Traditional
Exterior Features
Balcony
Covered Rear Porch
Garage rooftop deck
Interior Features
Fireplace in Family Room
Second Floor Master
Clustered Bedrooms
Closed Floor Plan
Kitchen and Dining
Breakfast Nook
Corner Window
Garage
9: 19 m²
Cars: 2
Front Entry
Roof
Roof Area: 0.00m²
Shed
Roof Pitch : 2/12 (9.5°)
Architect
NPS projektai NPS projektai Architecture Firm country with code lt Lithuania
country with code lt Lithuania
Šiauliai City Municipality, Šiauliai, Tilžės g. 151 (II aukštas)
Plan Package

The house plan might not adhere to the building codes of your country.

To ensure the house plan complies with your country’s building codes, you need to purchase the digital concept from the original architect and choose a local architect below to prepare the construction documents.

Digital Concept plan_plan_cad_owner_country_desc
$1260
Subtotal
Local Architects
Offers from your local architects who are ready to develop construction documents based on the digital concept.
 

 

 

Oops!
No one found.